Bản vẽ nhà cấp 4 mẫu, giá bản vẽ thiết kế nhà cấp 4
Nhà cấp 4, với ưu điểm về chi phí xây dựng hợp lý, không gian sống gần gũi thiên nhiên và sự tiện nghi, đang trở thành lựa chọn phổ biến. Bạn muốn sở hữu một ngôi nhà cấp 4 đẹp, hiện đại và tiết kiệm chi phí? Hãy cùng khám phá những bản thiết kế nhà cấp 4 độc đáo, và giá bản vẽ nhà cấp 4 chi tiết ngay sau đây nhé
Bản vẽ nhà cấp 4 là gì?
Bản vẽ nhà cấp 4 là tài liệu kỹ thuật mô tả chi tiết hệ thống kiến trúc, kết cấu và kỹ thuật của một ngôi nhà. Bản thiết kế nhà cấp 4 bao gồm các thông tin sau:
-
Mặt bằng: Hiển thị các phân chia phòng, kích thước, diện tích và vị trí của cửa ra vào và cửa sổ;
-
Bản vẽ mặt đứng: Thể hiện mặt đứng của ngôi nhà, bao gồm mái nhà và vật liệu sử dụng;
-
Bản vẽ mặt cắt: Mô tả cấu trúc bên trong của ngôi nhà, bao gồm móng, dầm, cột và mái;
-
Bản thiết kế chi tiết nhà cấp 4: Cung cấp thông tin chi tiết về các thành phần như cầu thang, mái nhà, hệ thống điện và nước.
Giá bản vẽ thiết kế nhà cấp 4
|
DIỆN TÍCH (M2) |
ĐƠN GIÁ (VND) |
GHI CHÚ |
THÀNH PHẦN HỒ SƠ THIẾT KẾ |
|
> 120 M2 |
100.000 vnd/ m2 |
Chưa có thiết kế 3D nội thất |
1. Phối cảnh 3D ngoại thất 2. Thiết kế kiến trúc 3. Thiết kế kết cấu 4. Thiết kế điện 5. Thiết kế nước |
|
< 120 M2 |
12.000.000 vnd/ 1 bộ |
Chưa có thiết kế 3D nội thất |
1. Phối cảnh 3D ngoại thất 2. Thiết kế kiến trúc 3. Thiết kế kết cấu 4. Thiết kế điện 5. Thiết kế nước |
|
> 120 M2 |
160.000 vnd/ m2 |
Có thiết kế 3D nội thất |
1. Phối cảnh 3D ngoại thất 2. Thiết kế kiến trúc 3. Thiết kế nội thất 4. Thiết kế kết cấu 5. Thiết kế điện 6. Thiết kế nước |
Xem thêm: Công trình nhà dân Bắc Giang ứng dụng hộp nhựa tạo rỗng
Các loại bản vẽ xây dựng nhà cấp 4
Nhà cấp 4, với sự đa dạng trong thiết kế, luôn nhận được sự quan tâm đặc biệt từ phía các chủ đầu tư. Để giúp bạn hình dung rõ nét hơn về ngôi nhà tương lai, dưới đây là tổng hợp các bản thiết kế nhà cấp 4 thông minh, tối ưu hóa không gian sống:
Bản thiết kế mẫu nhà cấp 4 theo kiểu mái
-
Nhà cấp 4 mái Thái:
-
Kiểu mái dốc cao, thoát nước nhanh, mang lại vẻ đẹp thẩm mỹ.
-
Bố trí công năng: 5 phòng ngủ, phòng khách, phòng thờ, phòng ăn và bếp, tạo không gian mở, liên thông.
-
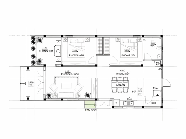
Nhà cấp 4 mái Nhật:
-
Mái dốc vừa phải, tạo vẻ sang trọng và hiện đại.
-
Bố trí công năng: phòng khách, phòng thờ, bếp, 2 phòng ngủ, 1 phòng vệ sinh khép kín, khu giặt giũ và nhà kho.
-
Nhà cấp 4 mái Lệch:
-
Kiểu mái lệch độc đáo, thoát nước tốt, tạo không gian mát mẻ.
-
Bố trí công năng: 3 phòng ngủ, phòng khách, bếp, phòng thờ, phòng vệ sinh chung.
-
Nhà cấp 4 mái Bằng:
-
Kiểu dáng hiện đại, vuông vức, tiết kiệm chi phí.
-
Bố trí công năng: 3 phòng ngủ, phòng khách, bếp, phòng thờ và phòng vệ sinh.
Các bản vẽ nhà cấp 4 theo diện tích sử dụng
Các mẫu bản vẽ nhà cấp 4 theo diện tích sử dụng dưới đây giúp gia chủ dễ dàng cân đối không gian phù hợp với nhu cầu:
-
Nhà cấp 4 7x12m:
-
Bố trí 3 phòng ngủ, phòng khách, bếp, khu vực ăn uống và vệ sinh chung.
-
Điểm nhấn: phòng khách thông với bếp, tận dụng ánh sáng tự nhiên.
-
Nhà cấp 4 mặt tiền 6m:
-
Thiết kế sân vườn, khu vực để xe, 2 phòng ngủ, phòng khách, bếp ăn, vệ sinh chung.
-
Nhà cấp 4 5x20m:
-
Phong cách hiện đại, 2 phòng ngủ, phòng khách, bếp ăn, vệ sinh chung, sân trước và mái chéo độc đáo.
-
Nhà cấp 4 4x16m:
-
Thiết kế tối giản, 2 phòng ngủ, phòng khách, bếp và vệ sinh chung, sử dụng màu sắc hài hòa.
-
Nhà cấp 4 4x12m:
-
Thiết kế nhỏ gọn, không gian liên thông, sử dụng kính và cây xanh tạo cảm giác thông thoáng.
Bản vẽ xây dựng nhà cấp 4 đơn giản theo kiểu dáng
Các bản vẽ thiết kế nhà cấp 4 theo kiểu dáng kiến trúc hiện nay rất đa dạng:
-
Nhà cấp 4 chữ L:
-
Phù hợp với diện tích đất rộng, tận dụng góc chữ L để tạo không gian thư giãn, gara và sân vườn.
-
Bố trí công năng: 5 phòng ngủ, phòng khách, bếp, phòng thờ, không gian ăn tiệc.
-
Nhà cấp 4 chữ U:
-
Kiến trúc độc đáo, thích hợp cho mảnh đất lớn.
-
Bố trí công năng: 3 phòng ngủ, phòng khách kết hợp phòng thờ, bếp, kho và vệ sinh chung.
-
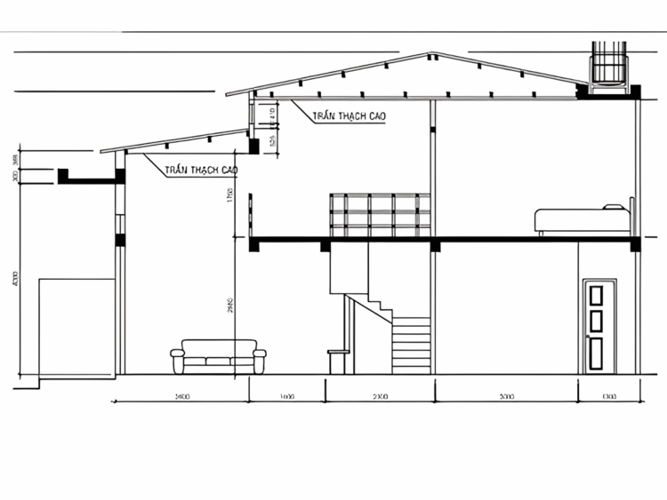
Nhà cấp 4 gác lửng:
-
Tăng thêm không gian sử dụng, tiết kiệm chi phí.
-
Tầng lửng: phòng ngủ lớn, phòng thờ. Tầng trệt: phòng khách, bếp, phòng ngủ, vệ sinh chung.
-
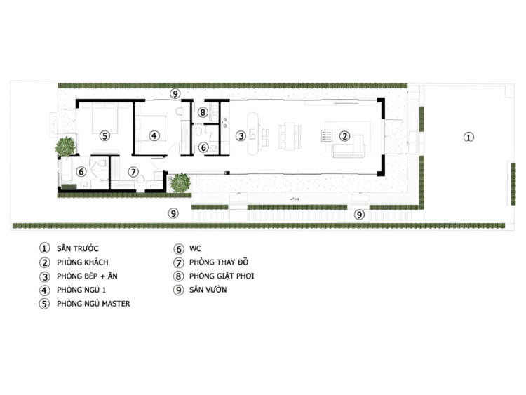
Nhà ống cấp 4:
-
Phù hợp với diện tích hạn chế, tối ưu hóa không gian sống.
-
Bố trí công năng: sân trước, phòng khách, phòng làm việc, bếp, phòng ngủ master, khu giặt phơi.
Bản vẽ xây dựng nhà cấp 4 theo số phòng
Bản vẽ thiết kế nhà cấp 4 theo số phòng là lựa chọn phổ biến của nhiều gia đình hiện nay, giúp đáp ứng nhu cầu sử dụng theo số lượng thành viên:
-
Nhà cấp 4 có 2 phòng ngủ:
-
Phù hợp cho các cặp vợ chồng trẻ, không gian sống đơn giản, hiện đại.
-
Bố trí công năng: phòng khách, bếp ăn, 2 phòng ngủ, 2 phòng vệ sinh, khu giặt.
-
Nhà cấp 4 có 3 phòng ngủ:
-
Thiết kế hiện đại, mái ngói, cửa kính, tiểu cảnh xanh.
-
Bố trí công năng: sân trước, phòng khách, phòng thờ, bếp ăn, 3 phòng ngủ, vệ sinh chung.
-
Nhà cấp 4 có 4 phòng ngủ:
-
Phù hợp cho gia đình đông người, thiết kế thanh lịch, mái Nhật.
-
Bố trí công năng: 4 phòng ngủ, phòng khách, phòng thờ, bếp ăn, vệ sinh chung, sân vườn, khu giải trí.
-
Nhà cấp 4 có 3 phòng ngủ 1 phòng thờ:
-
Phù hợp cho gia đình đông người, giúp tiết kiệm chi phí và gần gũi thiên nhiên.
-
Bố trí công năng: phòng khách, bếp ăn, 3 phòng ngủ, phòng thờ và sân vườn với tiểu cảnh xanh.
Chi tiết bản vẽ nhà cấp 4 theo tiện ích sử dụng
Các mẫu bảng vẽ nhà cấp 4 được thiết kế theo tiện ích sử dụng nhằm đáp ứng nhu cầu và mang đến không gian sống thoải mái, thuận tiện cho chủ đầu tư:
-
Nhà cấp 4 có gara:
-
Thiết kế hiện đại, mái bằng, cửa kính, gara ô tô phía trước, tiểu cảnh xanh. Bản vẽ chi tiết khu vực chức năng.
-
Nhà cấp 4 có sân vườn:
-
Không gian xanh, trong lành, chòi nghỉ, cây cảnh, tường rào.
-
Nhà cấp 4 có hồ bơi:
-
Hồ bơi phía sau, chòi nghỉ, cây xanh, không gian thư giãn.
-
Nhà cấp 4 kiểu biệt thự:
-
Kiến trúc hiện đại, tone màu trang nhã, tiểu cảnh xanh. Bản vẽ bao gồm phòng khách, phòng thờ, bếp ăn, 3 phòng ngủ và các không gian chức năng tiện nghi."
Hy vọng với các bản vẽ thiết kế nhà cấp 4 đẹp mà XFR chia sẻ chắc chắn đã mang đến nhiều ý tưởng và giải pháp bố trí công năng cho ngôi nhà của mình. Nếu bạn có nhu cầu thiết kế và thi công nhà cấp 4 trọn gói, đừng ngần ngại liên hệ với chúng tôi để được tư vấn chi tiết và báo giá phù hợp nhất!
Có thể xem thêm: Xây nhà trọn gói quảng ninh tối ưu chi phí XRF-Việt Nam

CÔNG TY TNHH Tư vấn xây dựng XRF-Việt Nam
Địa chỉ: Tầng 10, tòa nhà RCC 33 Láng Hạ, Ba Đình, Hà Nội
Xưởng: 76/12 Vĩnh Phú 38, phường Bình Hòa, TP. Hồ Chí Minh
Hotline: 0988 431 399
Email: info.xrf@gmail.com
Fanpage: XRF - Việt Nam







Xem thêm