Thiết kế trung tâm thương mại Vân Đồn – Quảng Ninh
Dự án xây dựng trung tâm thương mại Vân Đồn được định hướng là tổ hợp trung tâm mua sắm hiện đại, kết hợp khu văn phòng và giải trí, đòi hỏi hệ kết cấu bền vững – tiết kiệm – linh hoạt trong bố trí công năng. Giải pháp sàn phẳng hộp XF-BOX do XRF-Việt Nam chuyển giao đã được lựa chọn cho toàn bộ dự án nhằm đáp ứng tiêu chuẩn kỹ thuật cao và tiến độ thi công.
Dự án Trung tâm Thương mại Vân Đồn – Quảng Ninh | Ứng dụng sàn hộp XF-BOX trong thiết kế và thi công
- Công trình: Trung tâm Thương mại Vân Đồn – Quảng Ninh
- Chủ đầu tư: Công ty CP Đầu tư Xây dựng Phong Bảo
- Đơn vị thiết kế: XRF – Việt Nam
- Hạng mục: Thiết kế kết cấu sàn phẳng hộp XF-BOX
- Quy mô: Nhiều tầng, diện tích mặt sàn lớn, yêu cầu vượt nhịp xa.
Giải pháp kỹ thuật sàn phẳng XF-BOX trong thiết kế trung tâm thương mại - toà nhà văn phòng
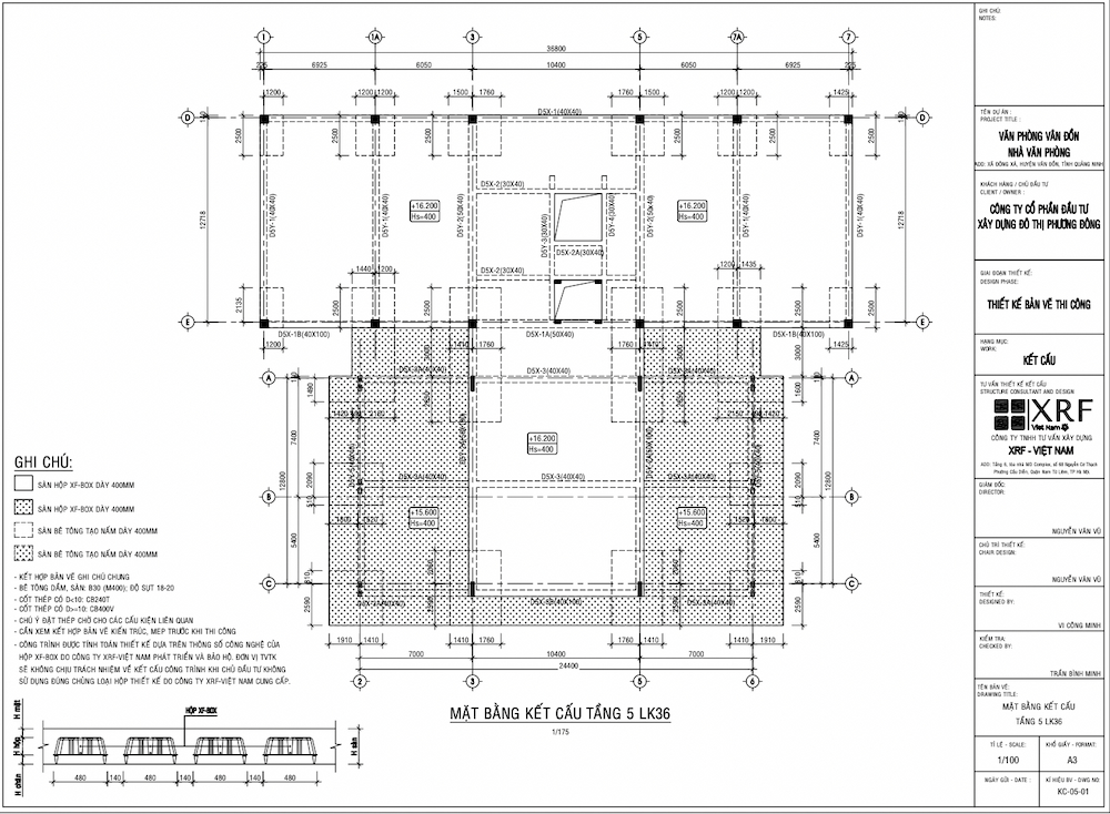
Bản vẽ thiết kế trung tâm thương mại
Trong thiết kế trung tâm thương mại, việc lựa chọn giải pháp kết cấu phù hợp đóng vai trò quyết định đến hiệu quả sử dụng không gian.
Hệ sàn phẳng XF-BOX mang lại nhiều ưu điểm vượt trội:
-
Tối ưu không gian: Sàn phẳng không dầm, tạo trần phẳng, dễ bố trí hệ thống M&E, chiếu sáng và điều hòa.
-
Vượt nhịp lớn: Có thể đạt tới 8–9m mà vẫn đảm bảo khả năng chịu lực và chống rung.
-
Tiết kiệm vật liệu: Giảm đến 30% lượng bê tông, 15% lượng thép so với sàn truyền thống.
-
Rút ngắn thời gian thi công: Nhanh hơn 10–15% so với kết cấu dầm sàn thông thường.
-
Hiệu quả cách âm, cách nhiệt, chống cháy REI 120 – phù hợp tiêu chuẩn an toàn cho công trình đông người.
Ứng dụng thực tế tại công trình Vân Đồn – Quảng Ninh
Trong dự án xây dựng trung tâm thương mại Vân Đồn, XRF-Việt Nam đã triển khai mặt bằng kết cấu sàn tầng 5 và mái LK36 bằng hệ sàn hộp XF-BOX, kết hợp thép chủ D18–D25 và bản sàn dày 120–150mm.
Kết quả:
-
Đạt độ cứng sàn cao, độ võng < 1/400 nhịp.
-
Hạn chế tối đa nứt mặt sàn sau khi bê tông hóa.
-
Giảm tải trọng truyền xuống hệ cột – móng, tối ưu thiết kế nền móng cho công trình có diện tích lớn.
Giải pháp này giúp xây trung tâm thương mại nhanh hơn, tiết kiệm chi phí, đồng thời tăng tuổi thọ công trình.
Vai trò của XRF-Việt Nam trong chuyển giao công nghệ
Là đơn vị tiên phong trong thiết kế trung tâm thương mại và kết cấu sàn phẳng hộp, XRF-Việt Nam cung cấp trọn gói dịch vụ:
-
Thiết kế kết cấu – kiểm định kỹ thuật – thẩm tra tải trọng.
-
Cung cấp hộp XF-BOX, phụ kiện và hướng dẫn thi công tại hiện trường.
-
Giám sát kỹ thuật, nghiệm thu và bảo hành kết cấu sàn.
Với tiêu chuẩn TCCS 74/IBST/2016, XRF đảm bảo mọi công trình ứng dụng XF-BOX đạt độ chính xác và an toàn cao nhất.
Thông số vật liệu:
-
Bê tông dầm, sàn: Mác B30 (M400); Độ sụt: 18–20 cm
-
Cốt thép D < 10 mm: CB240T
-
Cốt thép D ≥ 10 mm: CB400V
Yêu cầu thi công:
-
Kết hợp bản vẽ này với bản vẽ ghi chú chung.
-
Chú ý đặt thép chờ cho các cấu kiện liên quan.
-
Phải kiểm tra, đối chiếu bản vẽ kiến trúc, MEP trước khi thi công.
Ghi chú về công nghệ XF-BOX:
-
Công trình được thiết kế dựa trên thông số kỹ thuật của Hộp XF-BOX do Công ty XRF-Việt Nam phát triển và bảo hộ.
-
Đơn vị tư vấn thiết kế (TVTK) không chịu trách nhiệm về kết cấu nếu chủ đầu tư sử dụng hộp không đúng chủng loại, không phải do XRF-Việt Nam cung cấp.
Mô tả cấu tạo hộp XF-BOX:
-
Hộp XF-BOX được bố trí theo mô-đun 480 mm, khoảng cách giữa hộp 140 mm.
-
Chiều cao hộp (H_hộp) và chiều cao sàn (H_sàn) được ghi rõ trong bản vẽ chi tiết từng tầng.
-
Khi thi công, đảm bảo đúng khoảng cách tim hộp – tim hộp như bản vẽ cấu tạo bên dưới.
Dự án xây dựng trung tâm thương mại Vân Đồn – Quảng Ninh là minh chứng rõ ràng cho hiệu quả của công nghệ sàn hộp XF-BOX trong các công trình quy mô lớn. Giải pháp từ XRF-Việt Nam không chỉ giúp tối ưu chi phí và tiến độ mà còn mở ra xu hướng thiết kế trung tâm thương mại hiện đại, linh hoạt và bền vững.
XRF-VIỆT NAM – ĐƠN VỊ CHUYÊN GIAI PHÁP SÀN PHẲNG HỘP XF-BOX
Dịch vụ: Tư vấn – Thiết kế – Cung cấp vật liệu – Chuyển giao công nghệ thi công sàn hộp XF-BOX.

CÔNG TY TNHH Tư vấn xây dựng XRF-Việt Nam
Địa chỉ: Tầng 10, tòa nhà RCC 33 Láng Hạ, Ba Đình, Hà Nội
Xưởng: 76/12 Vĩnh Phú 38, phường Bình Hòa, TP. Hồ Chí Minh
Hotline: 0988 431 399
Email: info.xrf@gmail.com
Fanpage: XRF - Việt Nam








Xem thêm