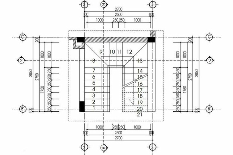
Bản vẽ cầu thang 21 bậc kích thước thiết kế
- Ký hiệu cầu thang trong bản vẽ
- Mặt cắt cầu thang:
- Mặt bằng cầu thang tầng thấp nhất:
- Mặt bằng cầu thang ở các tầng trung gian:
- Mặt bằng cầu thang tầng cao nhất:
- Bản vẽ cầu thang 21 bậc
- Kích thước bản vẽ cầu thang 21 bậc
- Chiều cao cầu thang:
- Độ rộng một vế thang:
- Chiều rộng mặt bậc thang:
- Chiều cao cổ bậc:
- Độ cao của lan can và tay vịn:
- Gờ bậc thang:
- Cách tính số bậc bản vẽ cầu thang theo phong thuỷ
- Lưu ý thiết kế & thi công bản vẽ cầu thang
Trong phong thủy, cầu thang không chỉ là lối di chuyển mà còn là “xương sống” dẫn khí và năng lượng trong ngôi nhà, ảnh hưởng trực tiếp đến tài lộc, sức khỏe của gia chủ. Thiết kế cầu thang 21 bậc theo đúng nguyên tắc phong thủy sẽ giúp cân bằng vượng khí, mang lại may mắn và sự thịnh vượng cho gia đình. Hãy cùng XRF-Việt Nam tìm hiểu nhé !
Ký hiệu cầu thang trong bản vẽ
Trong bản vẽ kỹ thuật, ký hiệu cầu thang là một trong những chi tiết dễ nhận diện nhất. Thông thường, ký hiệu này xuất hiện với tỷ lệ 1:200 hoặc nhỏ hơn. Đối với bản vẽ có tỷ lệ 1:100 trở lên, cầu thang cần được thể hiện chi tiết về vật liệu, cấu tạo và các thông số kết cấu quan trọng.
Các ký hiệu bản vẽ chi tiết cầu thang bao gồm:
Mặt cắt cầu thang:
Được thể hiện với tỷ lệ lớn hơn hoặc nhỏ hơn 1:200, giúp minh họa rõ ràng hình dáng và cấu tạo của bậc thang.
Mặt bằng cầu thang tầng thấp nhất:
Điểm bắt đầu cầu thang được ký hiệu bằng mũi tên, trong đó bậc đầu tiên có dấu chấm nhỏ. Dấu ngắt bậc sẽ được đặt tại vị trí có độ cao 1m so với mặt sàn.
Mặt bằng cầu thang ở các tầng trung gian:
Được biểu diễn bằng các đường mũi tên liên tục, thể hiện hướng di chuyển của cầu thang.
Mặt bằng cầu thang tầng cao nhất:
Cũng sử dụng đường mũi tên liên tục, với đầu nhọn kéo dài đến ranh giới mặt bằng của cầu thang, đảm bảo dễ dàng nhận diện trong bản vẽ.
Việc nắm vững các ký hiệu bản vẽ thiết kế cầu thang này giúp kiến trúc sư, kỹ sư và thợ thi công đọc bản vẽ cầu thang nhanh chóng và chính xác, đảm bảo quá trình thi công diễn ra thuận lợi.
Bản vẽ cầu thang 21 bậc
Hiện nay, bản vẽ cầu thang 21 bậc ngày càng được ưa chuộng nhờ vào các nguyên tắc phong thủy, giúp mang lại may mắn và tài lộc cho gia chủ. Việc thiết kế cầu thang với 21 bậc không chỉ đảm bảo tính thẩm mỹ mà còn phù hợp với quy luật vận động hài hòa trong không gian sống. Dưới đây là một số mẫu bản vẽ thép cầu thang 21 bậc mà bạn có thể tham khảo:
Mẫu 1: Bản vẽ cầu thang
Mẫu 2: Bản vẽ cầu thang 21 bậc
Mẫu 3: Bản vẽ cầu thang phong thủy
Kích thước bản vẽ cầu thang 21 bậc
Khi thiết kế cầu thang 21 bậc, bên cạnh việc áp dụng các nguyên tắc phong thủy, bạn cũng cần chú ý đến các thông số kỹ thuật để đảm bảo tính an toàn và thuận tiện khi sử dụng. Dưới đây là 6 yếu tố quan trọng mà bạn không thể bỏ qua:
Chiều cao cầu thang:
-
Thông thường, chiều cao tổng thể của cầu thang dao động từ 3m - 3.6m.
-
Số bậc lý tưởng trong nhà thường nằm trong khoảng 21 - 25 bậc, tùy thuộc vào độ cao của tầng và quy tắc phong thủy từng không gian.
Độ rộng một vế thang:
-
Với bản vẽ cầu thang 21 bậc, độ rộng tiêu chuẩn của một vế thang thường là 60cm.
-
Tuy nhiên, nhiều gia đình lựa chọn kích thước 90cm để tạo sự thoải mái và thuận tiện khi di chuyển.
Chiều rộng mặt bậc thang:
-
Chiều rộng mặt bậc thang không nên vượt quá 30cm, vì nếu quá rộng sẽ ảnh hưởng đến độ dốc tổng thể và làm mất sự cân đối của cầu thang.
Chiều cao cổ bậc:
-
Kích thước lý tưởng cho cổ bậc nằm trong khoảng 15cm - 18cm.
-
Nếu bậc quá cao, việc di chuyển sẽ khó khăn và dễ gây trượt ngã. Ngược lại, nếu quá thấp, cầu thang sẽ mất đi tính thẩm mỹ và không đảm bảo sự thoải mái khi bước lên xuống.
Độ cao của lan can và tay vịn:
-
Chiều cao lan can phù hợp cho cả người lớn và trẻ em thường dao động từ 85cm - 90cm, giúp đảm bảo an toàn khi sử dụng.
Gờ bậc thang:
-
Phần gờ của mỗi bậc nên có độ nhô ra khoảng 2cm. Điều này không chỉ tạo điểm nhấn thẩm mỹ mà còn giúp hạn chế tình trạng nước đọng trên mặt bậc, tránh trơn trượt.
Việc tuân thủ các kích thước tiêu chuẩn này sẽ giúp cầu thang không chỉ đẹp về mặt kiến trúc mà còn an toàn và phù hợp với phong thủy, mang lại sự hài hòa và may mắn cho gia đình.
Cách tính số bậc bản vẽ cầu thang theo phong thuỷ
Trong phong thủy, số bậc cầu thang có ảnh hưởng lớn đến dòng chảy năng lượng trong ngôi nhà, tác động trực tiếp đến tài lộc, sức khỏe và vận khí của gia chủ. Việc tính toán số bậc cầu thang thường tuân theo quy luật Sinh – Lão – Bệnh – Tử, cụ thể như sau:
-
Sinh: Tượng trưng cho sự khởi đầu, sinh sôi nảy nở, mang lại tài lộc, sức khỏe và thịnh vượng.
-
Lão: Biểu thị sự già nua, suy yếu, nguồn năng lượng dần cạn kiệt.
-
Bệnh: Đại diện cho bệnh tật, khó khăn, những điều không may mắn.
-
Tử: Biểu trưng cho sự kết thúc, mất mát và đau thương.
Theo nguyên tắc này, số bậc cầu thang lý tưởng nên rơi vào cung Sinh để thu hút năng lượng tích cực và mang lại may mắn.
Công thức tính bậc cầu thang phong thủy
Số bậc cầu thang thường được xác định dựa theo công thức:
Số bậc=4n+1
-
Trong đó, n là số nguyên dương phù hợp với chiều cao ngôi nhà.
-
Áp dụng công thức này, cầu thang 21 bậc tương ứng với n = 5, đảm bảo rơi vào cung Sinh, giúp cân bằng phong thủy và mang lại sự thuận lợi trong cuộc sống.
Với cách tính đơn giản, phương pháp này không chỉ giúp thi công dễ dàng mà còn đảm bảo tính thẩm mỹ, đồng thời tối ưu hóa năng lượng phong thủy trong không gian sống.
Xem thêm: Báo giá thi công cầu thang be tông cốt thép tối ưu
Lưu ý thiết kế & thi công bản vẽ cầu thang
Khi thiết kế và thi công cầu thang 21 bậc, bên cạnh việc tuân thủ các tiêu chuẩn kỹ thuật, bạn cũng cần chú ý đến yếu tố phong thủy để tạo sự hài hòa cho không gian sống, đồng thời mang lại may mắn và tài lộc cho gia đình. Dưới đây là một số lưu ý quan trọng:
Vị trí đặt chân cầu thang:
Tránh đặt ngay cửa ra vào hoặc cửa phòng ngủ, vì điều này có thể gây ảnh hưởng đến sức khỏe và tài chính của gia chủ.
Hình dáng cầu thang:
Nên ưu tiên thiết kế mềm mại, giúp luồng khí lưu thông thuận lợi. Hạn chế cầu thang xoắn ốc, đặc biệt là đặt đối diện cửa chính hoặc ở trung tâm ngôi nhà, vì dễ gây hao tài và ảnh hưởng đến sức khỏe.
Không thiết kế cầu thang cắt góc:
Theo phong thủy, cầu thang cắt góc có thể cản trở sự nghiệp và vận may. Nếu bắt buộc phải sử dụng thiết kế này, bạn nên đặt cây xanh để giảm bớt các góc cạnh sắc nhọn, tạo cảm giác cân bằng hơn.
Hạn chế cầu thang hở bậc:
Cầu thang hở bậc không chỉ làm phân tán vượng khí mà còn tiềm ẩn nguy hiểm, đặc biệt đối với trẻ nhỏ và người già. Vì vậy, cần đảm bảo thiết kế liền bậc, vững chắc để tăng độ an toàn và duy trì dòng năng lượng tốt trong nhà.
Tuân thủ những nguyên tắc này sẽ giúp cầu thang không chỉ đảm bảo công năng và thẩm mỹ mà còn tạo nên sự thịnh vượng, may mắn và bình an cho gia đình.
Liên hệ ngay với XRF-Việt Nam để được tư vấn thiết kế và thi công cầu thang chuẩn phong thủy, đảm bảo an toàn, chất lượng và phù hợp với không gian sống của bạn. Chúng tôi cam kết mang đến những giải pháp tối ưu, giúp bạn sở hữu một công trình bền vững, đẹp mắt và tràn đầy sinh khí!
Có thể xem thêm: Sàn dự ứng lực là gì? Thi công sàn cáp dự ứng lực

CÔNG TY TNHH Tư vấn xây dựng XRF-Việt Nam
Địa chỉ: Tầng 10, tòa nhà RCC 33 Láng Hạ, Ba Đình, Hà Nội
Xưởng: 76/12 Vĩnh Phú 38, phường Bình Hòa, TP. Hồ Chí Minh
Hotline: 0988 431 399
Email: info.xrf@gmail.com
Fanpage: XRF - Việt Nam








Xem thêm