Bản vẽ nhà cấp 4 3 phòng ngủ 100m2 xu hướng
- Xu hướng thiết kế bản vẽ nhà cấp 4 3 phòng ngủ tiện nghi – tiết kiệm
- Các mẫu bản vẽ 3d nhà cấp 4 3 phòng ngủ phổ biến
- 1. Bản vẽ 3d nhà cấp 4 3 phòng ngủ mái thái
- 2. Bản vẽ 3d nhà cấp 4 3 phòng ngủ mái bằng
- 3. Bản vẽ 3d nhà cấp 4 3 phòng ngủ chữ L
- 4. Bản vẽ cad nhà cấp 4 3 phòng ngủ có gác lửng
- 5. Bản vẽ chi tiết nhà cấp 4 3 phòng ngủ kiểu châu Âu
- Kết luận
- Xin bản vẽ nhà cấp 4 3 phòng ngủ 100m2 có mất phí không?
- Chi phí thiết kế bản vẽ nhà 3 phòng ngủ là bao nhiêu?
- Lưu ý khi lựa chọn đơn vị thiết kế bản vẽ nhà 3 phòng ngủ
- 1. Kiểm tra hồ sơ năng lực của đơn vị thiết kế bản vẽ nhà 3 phòng ngủ
- 2. Rõ ràng về quy mô hồ sơ của bản vẽ nhà 3 phòng ngủ
- 3. Phối hợp theo nhu cầu gia chủ khi thiết kế
- 4. Cam kết pháp lý rõ ràng
- 5. Chi phí hợp lý, không phát sinh
- 6. Hỗ trợ sau thiết kế
- XRF-VIỆT NAM – Thiết kế - thi công & cung cấp giải pháp sàn phẳng hiện đại
Không cần phải đầu tư vào những mẫu nhà cao tầng tốn kém, nhà cấp 4 với 3 phòng ngủ đang trở thành lựa chọn lý tưởng cho các gia đình hiện đại. Thiết kế thông minh, chi phí hợp lý và không gian sống tiện nghi là những yếu tố tạo nên sức hút cho xu hướng kiến trúc này.
Xu hướng thiết kế bản vẽ nhà cấp 4 3 phòng ngủ tiện nghi – tiết kiệm
-
Bố trí mặt bằng tối ưu cho bản vẽ nhà cấp 4 3 phòng ngủ: 3 phòng ngủ tách biệt, kết hợp phòng khách – bếp tạo không gian mở, thông thoáng.
-
Thiết kế đơn giản, hiện đại: Ưu tiên đường nét vuông vức, gọn gàng, dễ thi công.
-
Sử dụng mái Thái, mái bằng hoặc mái lệch: Tùy theo nhu cầu thẩm mỹ và kinh phí khi có ban thiet ke nha cap 4 3 phong ngu
-
Tận dụng ánh sáng và gió tự nhiên: Thiết kế cửa kính lớn, giếng trời hoặc cửa sổ bố trí hợp lý.
-
Kết hợp không gian xanh: Sân trước, vườn nhỏ hoặc cây xanh quanh nhà tạo sự gần gũi với thiên nhiên.
-
Tiết kiệm chi phí vật liệu: Ưu tiên vật tư dễ thi công, giá thành hợp lý nhưng bền vững.
-
Diện tích phổ biến: ban ve nha cap bon 3 phong ngu có diện tích từ 90m² đến 130m², phù hợp gia đình 3–5 người.
-
Ưu tiên công năng sử dụng: Đảm bảo đủ tiện nghi, dễ sửa chữa, bảo trì, thích hợp cả người lớn tuổi.
-
Thiết kế linh hoạt: Dễ mở rộng thêm phòng hoặc nâng tầng trong tương lai nếu cần.
Các mẫu bản vẽ 3d nhà cấp 4 3 phòng ngủ phổ biến
1. Bản vẽ 3d nhà cấp 4 3 phòng ngủ mái thái
Đặc điểm: Mái Thái cao ráo, sang trọng, giúp chống nóng tốt.
Bố trí công năng: 1 phòng khách, 1 bếp ăn, 3 phòng ngủ (trong đó có 1 phòng master), 2 WC.
Phong cách: Kết hợp hiện đại và truyền thống, phù hợp cả thành thị và nông thôn.
Ưu điểm: Thoáng mát, đẹp mắt, dễ thi công.
2. Bản vẽ 3d nhà cấp 4 3 phòng ngủ mái bằng
Đặc điểm: Thiết kế phẳng, tối giản, mang phong cách hiện đại.
Bố trí công năng: Phòng khách liên thông bếp, 3 phòng ngủ cạnh nhau, 1–2 nhà vệ sinh.
Phong cách: Hiện đại, trẻ trung, dễ mở rộng về sau.
Ưu điểm: Thi công nhanh, tiết kiệm chi phí, thích hợp đất vuông hoặc dài.
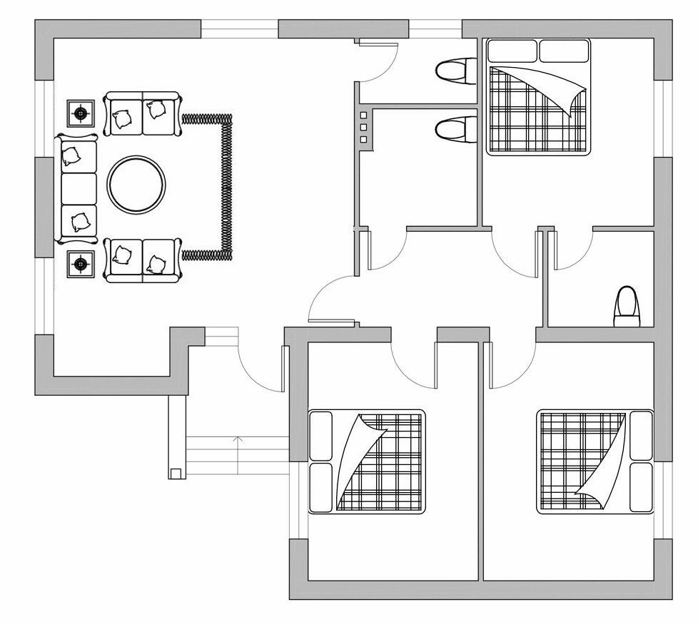
3. Bản vẽ 3d nhà cấp 4 3 phòng ngủ chữ L
Đặc điểm: Thiết kế hình chữ L tạo sân vườn hoặc chỗ để xe tiện lợi.
Bố trí công năng: 1 phòng khách, 3 phòng ngủ, bếp tách biệt, 1–2 WC.
Phong cách: Linh hoạt trong bố trí không gian, dễ đón ánh sáng và gió tự nhiên.
Ưu điểm: Phù hợp với đất ngang hoặc đất góc.
4. Bản vẽ cad nhà cấp 4 3 phòng ngủ có gác lửng
Đặc điểm: Thêm tầng lửng giúp tăng không gian sử dụng mà vẫn giữ chi phí hợp lý.
Bố trí công năng: 2 phòng ngủ tầng trệt, 1 phòng ngủ trên gác lửng; có phòng thờ nếu cần.
Phong cách: Hiện đại, tối ưu không gian cho gia đình đông người.
Ưu điểm: Nâng cao công năng mà không tốn nhiều chi phí xây nhà tầng.
5. Bản vẽ chi tiết nhà cấp 4 3 phòng ngủ kiểu châu Âu
Đặc điểm: Mái vòm, cửa kính lớn, thiết kế sang trọng theo phong cách tân cổ điển.
Bố trí công năng: Không gian mở, kết nối bếp – phòng ăn – phòng khách, 3 phòng ngủ tách biệt.
Phong cách: Sang trọng, độc đáo, phù hợp người yêu thích kiến trúc phương Tây.
Ưu điểm: Tính thẩm mỹ cao, thể hiện gu thẩm mỹ của gia chủ.
Kết luận
Các mẫu bản vẽ 3D nhà cấp 4 với 3 phòng ngủ không chỉ đa dạng về kiểu dáng mà còn phù hợp với nhiều diện tích và phong cách sống khác nhau. Dù bạn yêu thích vẻ đẹp truyền thống hay hiện đại, đều có thể dễ dàng lựa chọn mẫu thiết kế phù hợp cả về công năng lẫn ngân sách.
Xem thêm: Bản vẽ nhà cấp 4 mẫu, giá bản vẽ thiết kế nhà cấp 4
Xin bản vẽ nhà cấp 4 3 phòng ngủ 100m2 có mất phí không?
Khi nào KHÔNG mất phí?
Bạn có thể xin bản vẽ nhà cấp 4 3 phòng ngủ 100m2 miễn phí ở những nơi sau:
-
Trang web chia sẻ kiến trúc miễn phí (vd: kientrucnhadep24h, wedo.vn, angcovat.vn…)
-
Diễn đàn, nhóm Facebook về xây dựng – thiết kế nhà
-
Blogger hoặc kênh YouTube chuyên chia sẻ bản vẽ mẫu để có thể xin bản vẽ nhà cấp 4 3 phòng ngủ 100m2
-
Các công ty xây dựng chia sẻ bản vẽ demo để quảng bá dịch vụ
Tuy nhiên: khi xin bản vẽ nhà cấp 4 3 phòng ngủ 100m2 miễn phí thường là bản cơ bản (phối cảnh 3D, mặt bằng tổng thể), không đầy đủ hồ sơ kỹ thuật thi công chi tiết như kết cấu, điện nước, móng...
Khi nào CÓ mất phí?
Bạn sẽ cần trả phí nếu:
-
Muốn hồ sơ bản vẽ đầy đủ: kiến trúc, kết cấu, điện – nước, phối cảnh, dự toán.
-
Yêu cầu thiết kế riêng theo nhu cầu (sửa lại bản vẽ, điều chỉnh công năng, phong thủy, hướng nhà...)
-
Đặt dịch vụ tại công ty thiết kế chuyên nghiệp
Chi phí tham khảo cho bản vẽ nhà cấp 4 100m2 3 phòng ngủ:
-
Bản vẽ có sẵn, đầy đủ hồ sơ: khoảng 500.000 – 2 triệu đồng
-
Thiết kế mới theo yêu cầu: 120.000 – 250.000đ/m² tùy đơn vị
Chi phí thiết kế bản vẽ nhà 3 phòng ngủ là bao nhiêu?
1. Chi phí bản vẽ mặt bằng nhà cấp 4 3 phòng ngủ thiết kế theo m² (trọn gói hồ sơ kỹ thuật)
|
Phong cách |
Đơn giá thiết kế |
Chi tiết |
|
Nhà cấp 4 hiện đại |
100.000 – 130.000 VNĐ/m² |
Bao gồm kiến trúc + kết cấu + điện nước |
|
Nhà cấp 4 mái Thái |
120.000 – 150.000 VNĐ/m² |
Có phối cảnh 3D ngoại thất |
|
Nhà cấp 4 có gác lửng |
130.000 – 160.000 VNĐ/m² |
Hồ sơ chi tiết |
|
Nhà phong cách tân cổ điển |
160.000 – 200.000 VNĐ/m² |
Yêu cầu cao về thẩm mỹ, kỹ thuật |
2. Chi phí thiết kế gói cơ bản / mặt bằng (giá rẻ)
Nếu bạn chỉ cần bản vẽ mặt bằng bố trí công năng, không cần hồ sơ kỹ thuật chi tiết, chi phí sẽ rẻ hơn:
500.000 – 2.000.000 VNĐ/bản vẽ
Thường gồm: mặt bằng công năng, phối cảnh sơ bộ
Thích hợp để tham khảo hoặc làm việc với thợ địa phương
3. Thiết kế theo yêu cầu riêng biệt
Nếu bạn muốn thay đổi công năng, theo phong thủy, thiết kế theo mảnh đất cụ thể → sẽ được báo giá riêng.
Các đơn vị kiến trúc thường hỗ trợ tư vấn miễn phí trước khi chốt thiết kế.
Lưu ý khi lựa chọn đơn vị thiết kế bản vẽ nhà 3 phòng ngủ
1. Kiểm tra hồ sơ năng lực của đơn vị thiết kế bản vẽ nhà 3 phòng ngủ
Xem các dự án đã thực hiện, hình ảnh công trình thật, phản hồi khách hàng cũ.
Ưu tiên đơn vị có kinh nghiệm thiết kế nhà 3 phòng ngủ, đặc biệt là nhà cấp 4, nhà phố, biệt thự nhỏ.
2. Rõ ràng về quy mô hồ sơ của bản vẽ nhà 3 phòng ngủ
Đơn vị uy tín sẽ cung cấp bản vẽ đầy đủ gồm:
Kiến trúc (mặt bằng, phối cảnh, mặt đứng)
Kết cấu (móng, dầm, cột)
Điện, nước, thông gió, thoát hiểm (nếu cần)
Cẩn trọng với nơi chỉ cung cấp bản phác thảo sơ sài.
3. Phối hợp theo nhu cầu gia chủ khi thiết kế
Thiết kế phải phù hợp thói quen sinh hoạt, số người ở, phong thủy (nếu có).
Đơn vị tốt sẽ tư vấn lại mặt bằng chứ không vẽ rập khuôn từ mẫu có sẵn.
4. Cam kết pháp lý rõ ràng
Có hợp đồng thiết kế bản vẽ mẫu nhà cấp 4 3 phòng ngủ, tiến độ cụ thể, điều khoản bảo hành hồ sơ (chỉnh sửa nếu sai hoặc bất hợp lý).
Tránh các nhóm freelancer thiếu ràng buộc.
5. Chi phí hợp lý, không phát sinh
Báo giá minh bạch từ đầu (trọn gói/m² hoặc theo gói cơ bản – chi tiết).
Kiểm tra xem phí thiết kế có được trừ khi thi công trọn gói hay không.
6. Hỗ trợ sau thiết kế
Nên chọn đơn vị có thể đồng hành khi thi công, hỗ trợ kỹ thuật cho thợ địa phương hoặc nhận thi công luôn nếu bạn cần.
Xem thêm: Xây nhà 500 triệu ở nông thôn kinh nghiệm nhà đẹp
XRF-VIỆT NAM – Thiết kế - thi công & cung cấp giải pháp sàn phẳng hiện đại
XRF-VIỆT NAM là đơn vị chuyên cung cấp giải pháp sàn phẳng không dầm hiện đại, tối ưu cho các công trình dân dụng, công nghiệp và nhà cao tầng. Với đội ngũ kỹ sư giàu kinh nghiệm, chúng tôi tư vấn – thiết kế – thi công trọn gói hệ thống sàn phẳng, đảm bảo tiết kiệm chi phí, tăng hiệu quả kết cấu và rút ngắn tiến độ.
Dịch vụ của XRF-VIỆT NAM bao gồm:
-
Thiết kế sàn phẳng theo yêu cầu kỹ thuật và kiến trúc
-
Gia công – lắp đặt hệ sàn sử dụng công nghệ hộp rỗng, sàn không dầm hiện đại
-
Tư vấn giải pháp kết cấu, cải tiến mặt bằng và giảm tải trọng công trình
-
Cung cấp vật tư, thiết bị liên quan đến thi công sàn nhẹ, sàn hộp, sàn rỗng
Ưu điểm nổi bật:
-
Tối ưu chiều cao tầng – giảm chi phí móng
-
Tăng độ linh hoạt bố trí không gian, không vướng dầm
-
Giảm tải trọng toàn công trình, phù hợp tiêu chuẩn kết cấu hiện đại
XRF-VIỆT NAM cam kết mang đến giải pháp sàn chất lượng, hiệu quả và bền vững – đồng hành cùng các nhà đầu tư và đơn vị xây dựng trên toàn quốc.

CÔNG TY TNHH Tư vấn xây dựng XRF-Việt Nam
Địa chỉ: Tầng 10, tòa nhà RCC 33 Láng Hạ, Ba Đình, Hà Nội
Xưởng: 76/12 Vĩnh Phú 38, phường Bình Hòa, TP. Hồ Chí Minh
Hotline: 0988 431 399
Email: info.xrf@gmail.com
Fanpage: XRF - Việt Nam





Xem thêm