Bản vẽ nhà xưởng cỡ nhỏ đơn giản tham khảo
- Cách thiết kế bản vẽ nhà xưởng đơn giản
- Yêu cầu bản vẽ nhà xưởng nhỏ
- Các loại bản vẽ nhà xưởng cỡ nhỏ phổ biến
- 1. Bản vẽ nhà kho xưởng cấp 4
- 2. Bản vẽ nhà xưởng cỡ nhỏ 12m
- 3. Bản vẽ nhà kho khung thép 2 tầng
- 4. Bản vẽ nhà xưởng cỡ nhỏ kho nông sản
- 5. Bản vẽ nhà xưởng cỡ nhỏ 30m
- 6. Bản vẽ nhà xưởng có cầu trục
- 7. Bản vẽ cad điện nhà xưởng
- 8. Bản vẽ nhà xưởng đơn giản nhỏ
- Lưu ý khi thiết kế bản vẽ nhà xưởng nhỏ
- 1. Chọn vật liệu phù hợp:
- 2. Đảm bảo tính chính xác:
- 3. Thông số kỹ thuật chi tiết:
- 4. Bố trí hợp lý:
- 5. Lựa chọn đơn vị thi công uy tín:
- Thiết kế giám sát thi công nhà xưởng tối ưu tại XRF-Việt Nam
Sở hữu một bản vẽ thiết kế nhà xưởng rõ ràng, khoa học và dễ thi công là bước nền quan trọng giúp quá trình xây dựng diễn ra hiệu quả và đúng kỹ thuật. Trong bài viết này, XRF Việt Nam sẽ giới thiệu đến bạn các mẫu bản vẽ nhà xưởng nhỏ gọn, đơn giản, dễ triển khai và phù hợp với nhiều mục đích sử dụng thực tế.
Cách thiết kế bản vẽ nhà xưởng đơn giản
Dù là thiết kế nhà xưởng lớn hay nhỏ, quá trình thiết kế bản vẽ nhà xưởng cần tuân theo hai bước cơ bản sau:
1. Thiết kế cơ sở
Giai đoạn đầu tiên tập trung vào việc định hình ý tưởng và đề xuất phương án tổng quan, bao gồm:
-
Khảo sát hiện trạng khu đất với các thông tin về vị trí, mặt bằng xây dựng, quy mô công trình và các hạng mục dự kiến thực hiện.
-
Phương án kỹ thuật tổng thể: Đề xuất kết cấu công trình, giải pháp PCCC, hệ thống hạ tầng kỹ thuật và biện pháp bảo vệ môi trường, tuân thủ theo quy định pháp luật.
-
Phối hợp hạ tầng kỹ thuật: Xác định phương án liên kết giữa các khu vực chức năng và hệ thống hạ tầng phục vụ thi công.
2. Thiết kế bản vẽ thi công
Khi phương án cơ sở được phê duyệt, bước tiếp theo là triển khai chi tiết bản vẽ phục vụ xây dựng thực tế:
-
Bản vẽ tổng mặt bằng: Trình bày bố cục nhà xưởng, các khu vực chức năng chính và định hướng giao thông nội bộ.
-
Bản vẽ kỹ thuật chi tiết: Bao gồm kết cấu chịu lực, hệ thống hạ tầng (thoát nước, cấp điện, thông gió,...) và giải pháp thi công cụ thể.
-
Bổ sung bản vẽ kiến trúc (nếu cần): Tùy theo yêu cầu, có thể thêm phần thiết kế không gian, mặt đứng, phối cảnh để đảm bảo tính thẩm mỹ và tiện nghi sử dụng.
Yêu cầu bản vẽ nhà xưởng nhỏ
Bản vẽ thiết kế đóng vai trò then chốt trong việc đảm bảo công trình nhà xưởng được thi công đúng kỹ thuật và đáp ứng đầy đủ các yêu cầu từ phía chủ đầu tư. Bản vẽ phải thể hiện đầy đủ các thông số kỹ thuật, chi tiết cấu tạo và vật liệu sử dụng, phù hợp với các tiêu chuẩn và quy định hiện hành.
Bản vẽ nhà xưởng nhỏ cần bao gồm:
-
Bản vẽ tổng thể mặt bằng: Thể hiện hệ thống kỹ thuật, phương án kết cấu chính và các hạ tầng kỹ thuật.
-
Các yếu tố như kiến trúc, yêu cầu và công nghệ của nhà xưởng sẽ quyết định chi tiết bản vẽ.
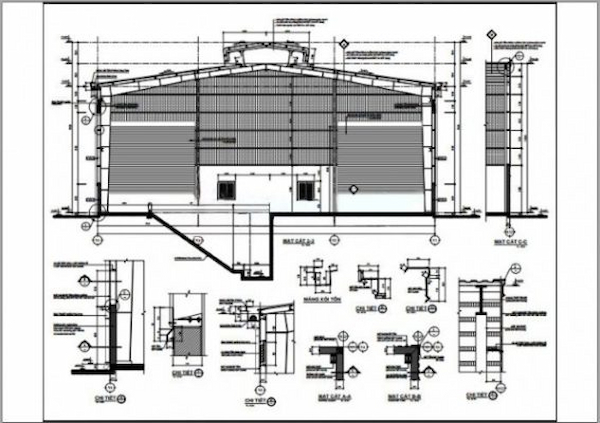
Các loại bản vẽ nhà xưởng cỡ nhỏ phổ biến
1. Bản vẽ nhà kho xưởng cấp 4
Mô hình nhà xưởng cấp 4 là lựa chọn phù hợp với nhu cầu thực tế của phần lớn doanh nghiệp. Nhà xưởng cấp 4 không chỉ giúp tiết kiệm chi phí mà còn có thời gian thi công nhanh chóng. Thiết kế của nó đơn giản, dễ dàng thay đổi quy mô và kết cấu. Hơn nữa, không yêu cầu diện tích quá lớn để xây dựng. Với không gian này, nên sử dụng đèn LED công suất thấp (< 50w) cho nhà xưởng.
2. Bản vẽ nhà xưởng cỡ nhỏ 12m
Đây là dạng nhà xưởng quy mô nhỏ, thường được ứng dụng để làm kho chứa hàng hoặc khu vực để xe ô tô. Chiều cao xưởng có thể từ 4 – 7m, nhịp lớn đạt 12m. Kết cấu linh hoạt với mái dốc hoặc mái vòm là lựa chọn lý tưởng cho thiết kế.
3. Bản vẽ nhà kho khung thép 2 tầng
Nhà xưởng tiền chế sử dụng kết cấu khung thép, tối ưu diện tích và phù hợp với nhu cầu mở rộng không gian sản xuất cho doanh nghiệp. Thời gian thi công nhanh chóng và công sức được tiết kiệm tối đa. Các nhà xưởng này có khả năng chịu lực tốt và độ bền cao, phù hợp cho việc làm kho hàng hoặc sản xuất.
4. Bản vẽ nhà xưởng cỡ nhỏ kho nông sản
Khi thiết kế nhà kho bảo quản nông sản, cần đặc biệt chú trọng đến các tiêu chuẩn về vệ sinh và an toàn thực phẩm. Vật liệu sử dụng nên đảm bảo độ bền cao, dễ lau chùi và không gây ảnh hưởng đến chất lượng nông sản. Cụ thể, lựa chọn đá hoa cho nền giúp dễ dàng vệ sinh, hạn chế bụi bẩn và vi khuẩn, trong khi mái tôn mang lại độ bền cao, khả năng chống thấm và thuận tiện cho việc bảo trì, bảo dưỡng lâu dài.
5. Bản vẽ nhà xưởng cỡ nhỏ 30m
Mẫu nhà xưởng sử dụng vì kèo 30m là giải pháp tối ưu cho công trình diện tích nhỏ, thiết kế đơn giản từ thép cốt thép và vật liệu khác, tiết kiệm chi phí và thời gian thi công. Phù hợp cho ngành sản xuất thực phẩm, giấy.
6. Bản vẽ nhà xưởng có cầu trục
Nhà xưởng có cầu trục được thiết kế để cầu trục di chuyển trên dầm và mô tô. Đảm bảo dầm có khả năng chịu lực tốt giúp nhà xưởng hoạt động ổn định và liên tục
7. Bản vẽ cad điện nhà xưởng
Bản vẽ AutoCAD chi tiết hệ thống điện nhà xưởng này bao gồm đầy đủ ký hiệu và hình vẽ theo tỷ lệ kỹ thuật chuẩn. Việc thiết kế hệ thống điện đúng cách không chỉ đảm bảo an toàn mà còn cung cấp đủ ánh sáng cho toàn bộ công trình.
8. Bản vẽ nhà xưởng đơn giản nhỏ
Mô hình nhà xưởng này có thiết kế nhỏ gọn, đơn giản, sử dụng vật liệu nhẹ như khung thép và tấm tôn. Mô hình này không chỉ giúp rút ngắn thời gian thi công mà còn tối ưu hóa không gian xây dựng
Xem thêm: Bản vẽ thiết kế nhà xưởng công nghiệp các loại
Lưu ý khi thiết kế bản vẽ nhà xưởng nhỏ
1. Chọn vật liệu phù hợp:
Người thiết kế cần hiểu rõ về các nguyên vật liệu sử dụng trong xây dựng nhà xưởng.
2. Đảm bảo tính chính xác:
Các thông số trong bản vẽ phải được tính toán chính xác, tuân thủ đầy đủ các quy định xây dựng của pháp luật.
3. Thông số kỹ thuật chi tiết:
Bản vẽ cần thể hiện rõ các thông số kỹ thuật của nhà xưởng, vật liệu cấu tạo thép và các tiêu chuẩn đảm bảo đủ điều kiện thi công.
4. Bố trí hợp lý:
Bản vẽ cần chỉ rõ cách bố trí từng khu vực, vị trí của các máy móc và thiết bị trong nhà xưởng.
5. Lựa chọn đơn vị thi công uy tín:
Doanh nghiệp nên chọn đơn vị thi công uy tín để đảm bảo chất lượng và tiến độ công trình.
Thiết kế bản vẽ nhà xưởng nhỏ chất lượng là nền tảng quan trọng giúp đảm bảo công trình xây dựng đạt hiệu quả và đáp ứng đầy đủ các yêu cầu sử dụng. Với đội ngũ kỹ sư giàu kinh nghiệm, XRF Việt Nam cam kết cung cấp cho khách hàng những công trình nhà thép tiền chế chắc chắn, sáng tạo và tối ưu, phù hợp hoàn hảo với nhu cầu sản xuất thực tế.
Xem thêm: Bản vẽ kết cấu thép nhà xưởng công nghiệp
Thiết kế giám sát thi công nhà xưởng tối ưu tại XRF-Việt Nam
XRF Việt Nam tự hào là đơn vị tiên phong trong việc ứng dụng công nghệ sàn phẳng XF-BOX, mang lại giải pháp tối ưu cho chi phí xây dựng nhà xưởng và hiệu quả vượt trội so với phương pháp thi công truyền thống. Hãy liên hệ với chúng tôi ngay hôm nay để nhận báo giá chi tiết cho thiết kế nhà xưởng và các ưu đãi đặc biệt!

CÔNG TY TNHH Tư vấn xây dựng XRF-Việt Nam
Địa chỉ: Tầng 10, tòa nhà RCC 33 Láng Hạ, Ba Đình, Hà Nội
Xưởng: 76/12 Vĩnh Phú 38, phường Bình Hòa, TP. Hồ Chí Minh
Hotline: 0988 431 399
Email: info.xrf@gmail.com
Fanpage: XRF - Việt Nam











Xem thêm