Bản vẽ trung tâm thương mại thiết kế quy chuẩn
- Thuyết Minh Bản Vẽ Trung Tâm Thương Mại
- Quy chuẩn thiết kế trung tâm thương mại
- Các loại bản vẽ trung tâm thương mại:
- 1. Bản Vẽ Mặt Bằng Định Vị Cọc và Cột
- 2. Bản Vẽ Chi Tiết Móng
- 3. Bản Vẽ Kết Cấu Thép
- 4. Bản Vẽ Kết Cấu Tầng
- 5. Bản Vẽ Chi Tiết Cột và Dầm
- 6. Bản Vẽ Mặt Bằng Bố Trí Thép
- 7. Các Bản Vẽ Mặt Bằng Cụ Thể Từng Tầng
- Quy trình áp dụng:
- Lý do cần các bản vẽ này:
- Thiết kế trung tâm thương mại Hải Dương - XRF-Việt Nam
Quy chuẩn thiết kế trung tâm thương mại là gì? Tham khảo mẫu thiết kế, bản vẽ trung tâm thương mại Hải dương thiết kế sàn phằng ngay sau đây!
Thuyết Minh Bản Vẽ Trung Tâm Thương Mại
Bản vẽ trung tâm thương mại phải mô tả các tầng, khu vực chức năng như khu bán lẻ, khu ăn uống, khu vui chơi, khu văn phòng và các khu dịch vụ công cộng. Cần chỉ rõ kích thước của các tầng, độ cao từng tầng, lối đi, thang máy, cầu thang bộ và các lối thoát hiểm.
Quy chuẩn thiết kế trung tâm thương mại
-
Quy chuẩn xây dựng Việt Nam Tập I, II, III
-
TCVN 2737:1995: Tải trọng và tác động. Tiêu chuẩn thiết kế
-
TCXD 229:1999: Chỉ dẫn tính toán thành phần tải trọng gió
-
TCXDVN 375:2006: Thiết kế công trình chịu động đất
-
TCXD 205:1998: Móng cọc. Tiêu chuẩn thiết kế
-
TCXD 195:1997: Nhà cao tầng – Thiết kế cọc khoan nhồi
-
TCXD 9362:2012: Tiêu chuẩn thiết kế nền nhà và công trình
-
TCXDVN 9395:2012: Cọc khoan nhồi. Tiêu chuẩn thi công và nghiệm thu
-
TCXDVN 5575:2018: Kết cấu bê tông và bê tông cốt thép. Tiêu chuẩn thiết kế
-
TCXDVN 5575:2012: Kết cấu thép. Tiêu chuẩn thiết kế
-
TCXD 198:1997: Nhà cao tầng. Thiết kế kết cấu bê tông cốt thép
-
TCXD 9202:2012: Xi măng xây trát
-
TCVN 5573:1991: Kết cấu gạch đá và gạch đá cốt thép
Các loại bản vẽ trung tâm thương mại:
1. Bản Vẽ Mặt Bằng Định Vị Cọc và Cột
Mặt bằng định vị cọc: Các bản vẽ này xác định vị trí các cọc móng trong công trình, phục vụ cho việc thi công phần móng vững chắc cho công trình.
Mặt bằng định vị cọc KC-07
-
Mặt bằng định vị cọc KC-07, KC-08
-
Mặt bằng kết cấu móng KC-09
Mặt bằng định vị cột: Các bản vẽ này giúp xác định vị trí các cột trong tòa nhà, từ tầng hầm đến tầng mái, đảm bảo cấu trúc vững chắc cho toàn bộ công trình.
Mặt bằng định vị cột vách tầng hầm KC-24
-
Mặt bằng định vị cột tầng 1 KC-25
-
Mặt bằng định vị cột tầng 2-3 KC-26
2. Bản Vẽ Chi Tiết Móng
Các bản vẽ chi tiết móng mô tả rõ các cấu kiện của móng và các kỹ thuật thi công liên quan, đảm bảo tính vững chãi và chịu lực cho công trình.
-
Chi tiết móng KC-10 đến KC-13
-
Chi tiết giằng móng KC-14 đến KC-17
3. Bản Vẽ Kết Cấu Thép
Các bản vẽ kết cấu thép thể hiện chi tiết về các thành phần thép trong công trình, bao gồm thép cột, thép sàn, dầm thép.
Thống kê thép KC-18
- Thống kê thép KC-18 đến KC-20
-
Thống kê thép cột KC-41 đến KC-45
4. Bản Vẽ Kết Cấu Tầng
Các bản vẽ này chỉ rõ kết cấu của từng tầng trong công trình, bao gồm thép sàn, bố trí thép chống cắt, chống thấm, và các cấu kiện liên quan.
-
Mặt bằng kết cấu tầng 1 KC-46
-
Mặt bằng thép sàn tầng 1 KC-48
-
Mặt bằng thép sàn gia cường lớp dưới tầng 1 KC-49
5. Bản Vẽ Chi Tiết Cột và Dầm
Các bản vẽ chi tiết cột và dầm là các bản vẽ giúp xác định cách thức bố trí và chi tiết về các cột, dầm trong công trình để đảm bảo độ bền và an toàn.
-
Chi tiết cột KC-31 đến KC-40
-
Chi tiết dầm tầng 1 KC-54, KC-55
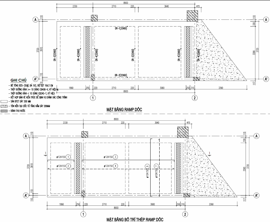
6. Bản Vẽ Mặt Bằng Bố Trí Thép
Các bản vẽ này chỉ rõ cách bố trí thép trong các phần kết cấu của tòa nhà như sàn, cột và dầm.
-
Mặt bằng bố trí thép chống cắt - chọc thủng tầng 1 KC-52, KC-53
-
Mặt bằng bố trí thép chống cắt - chọc thủng tầng 2 KC-65, KC-66
7. Các Bản Vẽ Mặt Bằng Cụ Thể Từng Tầng
Các bản vẽ này mô tả mặt bằng chi tiết cho từng tầng, bao gồm cả hệ thống bố trí thép và các yếu tố thiết kế khác.
-
Mặt bằng thép sàn tầng 2 KC-61
-
Mặt bằng thép sàn gia cường lớp dưới tầng 2 KC-62
Bảng phân loại các bản vẽ này giúp cho việc tổ chức và thực hiện các công việc liên quan đến thi công và giám sát công trình trở nên dễ dàng và hiệu quả hơn. Mỗi loại bản vẽ có vai trò quan trọng trong việc đảm bảo chất lượng và tính an toàn của công trình.
Xem chi tiết bản vẽ trung tâm thương mại Hải Dương tại đây! Liên hệ Hotline/Zalo 0988 431 399 để được tư vấn thiết kế sàn phẳng chi tiết!
Quy trình áp dụng:
-
Các bản vẽ này là tài liệu kỹ thuật quan trọng trong quá trình thiết kế và thi công của công trình.
-
Mỗi bản vẽ sẽ đi kèm với số hiệu giúp tra cứu và tham chiếu dễ dàng trong việc thực hiện công việc thi công, sửa chữa, bảo trì và giám sát công trình.
Lý do cần các bản vẽ này:
-
Quản lý thi công: Các bản vẽ chi tiết giúp đội ngũ thi công hiểu rõ các yêu cầu kỹ thuật, cấu trúc và thiết kế của công trình.
-
Phê duyệt và kiểm tra: Các bản vẽ này cũng sẽ được các cơ quan có thẩm quyền phê duyệt trước khi triển khai thi công.
-
Tiến độ thi công: Bảng giúp theo dõi tiến độ thi công, các công đoạn và cấu kiện của công trình.
Thiết kế trung tâm thương mại Hải Dương - XRF-Việt Nam
Bản vẽ thiết kế trung tâm thương mại cần phải mô tả chi tiết và chính xác các yếu tố kết cấu, hệ thống cơ điện, an toàn, và sự tiện nghi cho người sử dụng. Việc thiết kế các yếu tố này một cách hợp lý sẽ tạo nên không gian thương mại an toàn, hiệu quả và thoải mái cho khách hàng.

CÔNG TY TNHH Tư vấn xây dựng XRF-Việt Nam
Địa chỉ: Tầng 10, tòa nhà RCC 33 Láng Hạ, Ba Đình, Hà Nội
Xưởng: 76/12 Vĩnh Phú 38, phường Bình Hòa, TP. Hồ Chí Minh
Hotline: 0988 431 399
Email: info.xrf@gmail.com
Fanpage: XRF - Việt Nam










Xem thêm