Thiết kế toà nhà văn phòng bản vẽ văn phòng
Tòa nhà văn phòng là loại hình công trình được xây dựng với mục đích làm nơi đặt trụ sở cho doanh nghiệp. Thiết kế toà nhà văn phòng tạo không gian làm việc hoặc cho thuê phục vụ hoạt động kinh doanh. Những tòa nhà này thường tọa lạc tại các vị trí chiến lược, sở hữu diện tích sàn lớn và được bố trí nhiều khu vực chức năng như: phòng làm việc, khu tiếp khách, phòng họp, khu pantry,…
Thiết kế toà nhà văn phòng là gì?
Thiết kế tòa nhà văn phòng bao gồm quá trình phát triển ý tưởng và triển khai kiến trúc nhằm xây dựng một môi trường làm việc hiệu quả. Quá trình này cần cân nhắc đến nhiều yếu tố như mục đích khai thác, khả năng tài chính và yêu cầu pháp lý về quy hoạch đặc biệt trong bản vẽ thiết kế văn phòng làm việc.
Bản vẽ thiết kế văn phòng là gì?
Bản vẽ thiết kế văn phòng làm việc là tài liệu thể hiện hình ảnh mô phỏng không gian làm việc trước khi bắt đầu thi công thực tế. Một bộ hồ sơ thiết kế hoàn chỉnh thường bao gồm: bản vẽ văn phòng làm việc của mặt bằng (layout), phối cảnh 3D, bản vẽ 2D và hệ thống kỹ thuật MEP. Đây là công cụ quan trọng giúp kiến trúc sư và chủ đầu tư thảo luận, thống nhất các phương án thiết kế trước khi triển khai xây dựng. Bên cạnh đó, bản vẽ thiết kế văn phòng còn cung cấp các thông số kỹ thuật chi tiết như kích thước, khoảng cách, màu sắc, cao độ,… nhằm đảm bảo thi công đúng theo yêu cầu đã đề ra.
Bản vẽ văn phòng gồm những gì?
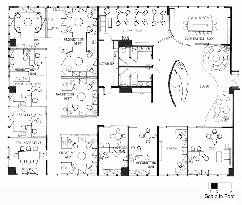
Bản vẽ sơ đồ mặt bằng văn phòng
Đây là bước đầu tiên trong quá trình thiết kế không gian làm việc, thể hiện bố cục sắp xếp văn phòng trên mặt cắt bằng theo một tỷ lệ kỹ thuật đã được quy định. Bản vẽ văn phòng layout đóng vai trò mô phỏng cách phân chia không gian, tỉ lệ các khu vực chức năng và vị trí cụ thể của từng món nội thất – từ các món đồ gắn cố định đến đồ rời.
Không chỉ cho thấy cách bố trí đồ đạc, bản vẽ văn phòng còn định hướng các luồng di chuyển trong văn phòng, đảm bảo giao thông nội bộ hợp lý và tiện lợi. Đây chính là nền tảng quan trọng để tiếp tục triển khai các bản vẽ cao ốc văn phòng chi tiết khác. Dựa trên mặt bằng bố trí, kiến trúc sư có thể phát triển thêm về phần vật liệu, màu sắc, họa tiết, cũng như các yếu tố kỹ thuật khác.
Bản vẽ phối cảnh 3D văn phòng
Phối cảnh 3D là bản vẽ nội thất văn phòng thể hiện không gian văn phòng một cách sống động trong môi trường ba chiều. Nhờ hình ảnh trực quan, khách hàng dễ dàng hình dung diện mạo thực tế của văn phòng sau khi hoàn thiện. Điều này giúp họ đưa ra nhận xét, điều chỉnh thiết kế nếu cần, từ đó tránh những sai sót không mong muốn trong quá trình thi công.
Bản vẽ 3D không chỉ truyền tải bố cục không gian mà còn cho thấy sự kết hợp màu sắc, chất liệu nội thất và các yếu tố thẩm mỹ tổng thể. Từ hình dáng đồ dùng cho đến cảm giác vật liệu, tất cả đều được thể hiện rõ ràng giúp khách hàng có cái nhìn chân thực nhất về thiết kế.
Bản vẽ kỹ thuật 2D và hệ thống MEP
Bản vẽ 2D cùng với hệ thống kỹ thuật MEP là phần không thể thiếu trong hồ sơ thiết kế văn phòng. Đây là bản vẽ thể hiện chi tiết kỹ thuật, bao gồm kích thước từng phần tử, diện tích từng phòng, thông số của nội thất... Các thông số này đóng vai trò quan trọng trong quá trình thi công, đòi hỏi độ chính xác cao và cần được thực hiện đúng theo thiết kế đã đề ra.
Phần thiết kế MEP (cơ điện) thuộc nhóm bản vẽ kỹ thuật 2D, cung cấp thông tin liên quan đến việc bố trí hệ thống kỹ thuật trong không gian văn phòng. Các hạng mục chính thường có trong bản vẽ MEP gồm:
Hệ thống thông gió và điều hòa không khí:
Được lắp đặt nhằm đảm bảo chất lượng không khí và độ sạch theo tiêu chuẩn của các mô hình phòng sạch như GLP, GMP và GSP.
Hệ thống cấp thoát nước và thiết bị vệ sinh:
Liên quan đến việc cấp nước sạch, xử lý nước thải, thoát nước và bố trí các thiết bị vệ sinh trong văn phòng.
Hệ thống điện và mạng lưới điện:
Bao gồm bản vẽ quầy lễ tân, hệ thống truyền tải điện, phân phối, cũng như các thiết bị điều khiển, bảo vệ trong toàn bộ văn phòng.
Hệ thống báo cháy và chữa cháy:
Được thiết kế để phát hiện và xử lý kịp thời các sự cố cháy nổ, giảm thiểu rủi ro và thiệt hại cho người và tài sản.
Xem thêm:
Các yếu tố lưu ý khi thiết kế toà nhà văn phòng
Thiết kế toà nhà văn phòng hiện đại cần đảm bảo sự hài hòa giữa thẩm mỹ, công năng và trải nghiệm người dùng. Dưới đây là 5 yếu tố cốt lõi:
Linh hoạt: Không gian dễ thay đổi, phù hợp với nhiều hình thức làm việc.
Ánh sáng tự nhiên: Giúp tiết kiệm năng lượng và cải thiện sức khỏe, hiệu suất.
Công nghệ thông minh: Tích hợp hệ thống quản lý, điều khiển và kết nối hiện đại.
Không gian xanh: Cây xanh và khu vực mở tạo sự thư giãn, giảm căng thẳng.
Tiện ích đầy đủ: Phòng họp, khu nghỉ và không gian chung nâng cao trải nghiệm.
Thiết kế toà nhà văn phòng với sàn phẳng XF-BOX
XRF-Việt Nam – Giải pháp xây dựng hiện đại và tiết kiệm
XRF-Việt Nam mang đến giải pháp thi công tiên tiến, giúp giảm thiểu chi phí so với phương pháp xây dựng truyền thống. Chúng tôi cung cấp dịch vụ thiết kế với quy trình nhanh gọn, tiết kiệm thời gian và nhân lực, đồng thời tối ưu chi phí vật liệu hiệu quả.
Chuyển giao công nghệ sàn không dầm XF-BOX
Công nghệ sàn phẳng XF-BOX là bước tiến mới trong xây dựng, giúp tối ưu chi phí và nâng cao hiệu quả với những ưu điểm vượt trội như:
Giảm đáng kể lượng thép và bê tông sử dụng.
Thi công đơn giản, đẩy nhanh tiến độ hoàn thiện.
Không cần dầm, tạo không gian thoáng và linh hoạt trong thiết kế.
Cam kết chất lượng và uy tín
Chúng tôi sử dụng vật liệu xây dựng đạt chuẩn, rõ ràng về nguồn gốc, đảm bảo độ bền và chất lượng công trình lâu dài. XRF-Việt Nam luôn đặt uy tín và sự hài lòng của khách hàng lên hàng đầu.
Tư vấn rõ ràng – báo giá minh bạch
Đội ngũ chuyên viên của chúng tôi sẵn sàng hỗ trợ, tư vấn tận tình và cung cấp báo giá cụ thể để khách hàng dễ dàng lựa chọn phương án phù hợp với ngân sách.
Bảo hành đáng tin cậy
Với chế độ bảo hành chuyên nghiệp, XRF-Việt Nam luôn đồng hành cùng khách hàng sau thi công, mang đến sự an tâm và hài lòng tuyệt đối.
Liên hệ ngay với chúng tôi qua hotline để nhận tư vấn và báo giá xây nhà trọn gói tại Ninh Bình một cách nhanh chóng!
Có thể xem thêm: Tiêu chuẩn thiết kế bệnh viện bản vẽ tham khảo

CÔNG TY TNHH Tư vấn xây dựng XRF-Việt Nam
Địa chỉ: Tầng 10, tòa nhà RCC 33 Láng Hạ, Ba Đình, Hà Nội
Xưởng: 76/12 Vĩnh Phú 38, phường Bình Hòa, TP. Hồ Chí Minh
Hotline: 0988 431 399
Email: info.xrf@gmail.com
Fanpage: XRF - Việt Nam







Xem thêm