Bản vẽ nhà phố thiết kế kiến trúc thi công
- Bản vẽ nhà phố gồm những gì?
- Thiết kế kiến trúc trong bản vẽ nhà
- Thiết kế kết cấu trong bản vẽ
- Thiết kế hệ thống điện
- Thiết kế hệ thống cấp – thoát nước
- Các loại bản vẽ nhà phố
- Bản vẽ kiến trúc nhà phố
- Bản vẽ kết cấu nhà phố
- Thiết Kế Hệ Thống Điện Nước Cho Nhà Phố
- Bản Vẽ Nội Thất Cho Nhà Phố
- Bản Vẽ Cảnh Quan Cho Nhà Phố
- Quy trình thiết kế thi công nhà phố chuyên nghiệp
- Tiếp nhận thông tin dự án:
- Khảo sát hiện trạng công trình:
- Ký hợp đồng thiết kế nội thất:
- Lên bản vẽ bố trí mặt bằng và ý tưởng (concept):
- Thiết kế bản vẽ 3D và hoàn thiện hồ sơ kỹ thuật:
- Lựa chọn và thống nhất vật liệu, vật tư:
- Ký hợp đồng thi công:
- Sản xuất và thi công lắp đặt:
- Nghiệm thu và bàn giao công trình:
- Chế độ bảo hành, bảo trì sau thi công:
Trong quá trình xây dựng nhà ở tại khu vực đô thị, bản vẽ nhà phố đóng vai trò quan trọng giúp hiện thực hóa ý tưởng thiết kế một cách rõ ràng và khoa học. Hãy cùng XRF Việt Nam khám phá những yếu tố cần biết trong bản vẽ nhà phố để đảm bảo công trình vừa thẩm mỹ, vừa phù hợp với nhu cầu sinh hoạt thực tế.
Bản vẽ nhà phố gồm những gì?
Một bản vẽ thiết kế nhà là tập hợp các tài liệu chi tiết mô tả toàn bộ phương án xây dựng từ trong ra ngoài của công trình. Thông thường, bản vẽ phần thô sẽ bao gồm bốn thành phần chính: bản vẽ kiến trúc, bản vẽ kết cấu, sơ đồ hệ thống điện và bản thiết kế hệ thống cấp – thoát nước. Trong một số trường hợp, bản vẽ nhà phố còn tích hợp cả phần nội thất nếu gia chủ có nhu cầu sử dụng dịch vụ thiết kế trọn gói.
Khi lựa chọn gói thiết kế toàn diện, phần thiết kế nội thất sẽ được đưa vào bản vẽ tổng thể. Dĩ nhiên, mức chi phí cho dịch vụ trọn gói sẽ cao hơn so với việc chỉ thuê thiết kế phần thô hoặc từng phần riêng lẻ.
Thiết kế kiến trúc trong bản vẽ nhà
Bản vẽ thi công nhà phố đóng vai trò quan trọng trong việc thể hiện bố cục tổng thể của các tầng, các phòng chức năng và hình dáng mái nhà. Ngoài ra, nó còn cung cấp thông tin về cách sắp xếp các vật dụng nội thất cũng như loại vật liệu sẽ được sử dụng. Nhờ đó, gia chủ có thể hình dung rõ ràng hơn về không gian sống tương lai của mình.
Thiết kế kết cấu trong bản vẽ
Phần kết cấu của bản thiết kế nhà phố sẽ trình bày chi tiết về khung sườn của công trình như móng, dầm, cột và cách bố trí thép. Bản vẽ này hỗ trợ đội thi công thực hiện đúng kỹ thuật, đảm bảo công trình bền vững và an toàn.
Thiết kế hệ thống điện
Phần thiết kế điện sẽ mô tả cách bố trí hệ thống dây dẫn, thiết bị điện trong nhà dựa trên nhu cầu sử dụng của gia chủ. Việc sắp xếp hợp lý hệ thống điện giúp đảm bảo sự tiện lợi trong sinh hoạt và hạn chế các rủi ro liên quan đến an toàn.
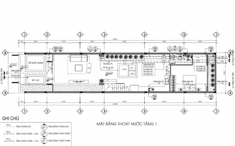
Thiết kế hệ thống cấp – thoát nước
Bản vẽ chi tiết nhà phố hệ thống nước sẽ mô tả sơ đồ phân bố đường ống, bể chứa nước, hệ thống xử lý nước thải, hố ga,… Việc thiết kế khoa học sẽ đảm bảo cho việc cấp thoát nước hiệu quả, tránh tình trạng tắc nghẽn hay rò rỉ về sau.
Các loại bản vẽ nhà phố
-
Bản vẽ kiến trúc nhà phố
Bản vẽ kiến trúc được xem là phần trọng yếu và khởi đầu trong hồ sơ thiết kế nhà phố. Nó thể hiện một cách trực quan các thành phần cấu trúc như mặt bằng, mặt cắt và mặt đứng của công trình.
Mặt bằng tổng thể:
Là hình ảnh mô phỏng công trình nhìn từ trên xuống cho thấy rõ sự phân chia các không gian. Cụ thể như phòng ốc, hành lang, cầu thang, vị trí cửa ra vào và các chi tiết kiến trúc khác.
Mặt cắt:
Minh họa công trình theo phương thẳng đứng, giúp hiểu rõ về chiều cao tầng, cách bố trí không gian và các yếu tố kỹ thuật như tường, trần.
Mặt đứng:
Là phần thể hiện hình dáng bên ngoài của công trình khi nhìn từ phía trước hoặc hai bên. Bản vẽ này tập trung vào chi tiết như ban công, cửa sổ, và các yếu tố trang trí ngoại thất.
-
Bản vẽ kết cấu nhà phố
Đây là phần giúp xác định độ bền và tính ổn định cho toàn bộ công trình, phản ánh các yếu tố liên quan đến phần khung và nền móng.
Bản vẽ móng cọc nhà phố:
Trình bày về loại móng sử dụng, độ sâu và cách thức thi công. Móng là nền tảng quan trọng đảm bảo sự chắc chắn cho cả ngôi nhà.
Cột và dầm:
Thể hiện vị trí, kích thước và vật liệu của hệ thống cột, dầm – các bộ phận chịu lực chính, đóng vai trò nâng đỡ toàn bộ công trình.
Sàn nhà:
Mô tả cách thi công sàn, độ dày và chất liệu, đồng thời tích hợp cả hệ thống điện, nước âm sàn nếu có.
-
Thiết Kế Hệ Thống Điện Nước Cho Nhà Phố
Phần bản vẽ này đóng vai trò quan trọng trong việc đảm bảo tiện nghi và an toàn khi sử dụng các thiết bị điện và nước trong sinh hoạt hàng ngày.
Điện sinh hoạt:
Bao gồm sơ đồ bố trí đèn, công tắc, ổ cắm và đường dây dẫn điện trong nhà. Việc sắp xếp hợp lý giúp thuận tiện trong quá trình sử dụng và tăng tính an toàn.
Hệ thống cấp thoát nước:
Cho biết cách bố trí các thiết bị như vòi nước, chậu rửa, bồn cầu, cùng hệ thống ống dẫn nước và thoát nước thải. Thiết kế đúng kỹ thuật sẽ giúp hệ thống hoạt động hiệu quả, giảm thiểu sự cố.
-
Bản Vẽ Nội Thất Cho Nhà Phố
Bản vẽ nội thất hỗ trợ chủ nhà hình dung được không gian sống sau khi hoàn thiện và giúp bố trí đồ đạc một cách hợp lý.
Sơ đồ bố trí nội thất:
Cho thấy vị trí sắp đặt các vật dụng như giường ngủ, bàn ăn, tủ kệ, bản vẽ cầu thang nhà phố… nhằm tối ưu hóa diện tích và công năng sử dụng.
Chi tiết thiết kế nội thất:
Thể hiện kích thước, chất liệu và kiểu dáng của từng món đồ nội thất. Điều này nhằm phục vụ cho việc thi công hoặc mua sắm phù hợp với phong cách tổng thể.
-
Bản Vẽ Cảnh Quan Cho Nhà Phố
Đối với những công trình có sân vườn hoặc khu vực sinh hoạt ngoài trời, bản vẽ cảnh quan giúp định hướng việc tổ chức không gian xanh và các yếu tố ngoài trời.
Sơ đồ bố trí cảnh quan:
Cho thấy cách sắp xếp cây xanh, thảm cỏ, đường đi dạo và các chi tiết trang trí như hồ nước nhỏ, tiểu cảnh,…
Chi tiết cảnh quan:
Cung cấp thông tin về loại cây trồng, vật liệu làm lối đi, thiết bị ngoại thất như đèn sân vườn hay ghế đá. Tất cả nhằm tạo nên không gian sống sinh động và hài hòa với thiên nhiên.
Xem thêm: Công ty xây dựng nhà phố Hà Nội ứng dụng sàn phẳng
Quy trình thiết kế thi công nhà phố chuyên nghiệp
Trong bài viết này, chúng tôi sẽ trình bày chi tiết quy trình thiết kế và thi công nội thất nhà phố một cách chuyên nghiệp, giúp anh/chị có cái nhìn rõ ràng và đầy đủ hơn:
Tiếp nhận thông tin dự án:
Đội ngũ sẽ ghi nhận các yêu cầu, mong muốn cụ thể về phong cách, công năng và ngân sách dự kiến.
Khảo sát hiện trạng công trình:
Kiến trúc sư tiến hành đo đạc, đánh giá mặt bằng thực tế để đưa ra phương án thiết kế phù hợp.
Ký hợp đồng thiết kế nội thất:
Hai bên thống nhất các điều khoản và tiến hành ký kết hợp đồng thiết kế.
Lên bản vẽ bố trí mặt bằng và ý tưởng (concept):
Đề xuất layout không gian và định hướng phong cách thiết kế.
Thiết kế bản vẽ 3D và hoàn thiện hồ sơ kỹ thuật:
Cung cấp bản vẽ nhà phố phối cảnh 3D sinh động cùng các bản vẽ kỹ thuật chi tiết phục vụ thi công.
Lựa chọn và thống nhất vật liệu, vật tư:
Tư vấn và chốt các loại vật liệu sử dụng: gỗ, đá, màu sơn, thiết bị nội thất…
Ký hợp đồng thi công:
Sau khi hoàn tất thiết kế, hai bên tiến hành ký hợp đồng thi công nội thất.
Sản xuất và thi công lắp đặt:
Đồ nội thất được gia công tại xưởng và lắp đặt trực tiếp tại công trình đúng tiến độ.
Nghiệm thu và bàn giao công trình:
Kiểm tra, hoàn thiện và bàn giao nội thất cho chủ nhà sử dụng.
Chế độ bảo hành, bảo trì sau thi công:
Đảm bảo quyền lợi khách hàng với chính sách hậu mãi rõ ràng và hỗ trợ dài hạn.
XRF Việt Nam là đơn vị chuyên thiết kế – thi công bản vẽ nhà phố với nhiều năm kinh nghiệm. Chúng tôi đã thực hiện nhiều công trình từ căn hộ, nhà phố cho đến biệt thự và không gian văn phòng. Chúng tôi luôn đặt chất lượng công trình và dịch vụ tư vấn tận tâm lên hàng đầu. Đó cũng là lý do khiến khách hàng luôn tin tưởng và lựa chọn đồng hành cùng chúng tôi trong suốt chặng đường vừa qua.
Gọi đến hotline của chúng tôi để được tư vấn và báo giá bản vẽ nhà phố sớm nhất nhé!
Xem thêm: Xây Nhà phố Ninh Bình ứng dụng sàn hộp tạo rỗng XF-BOX

CÔNG TY TNHH Tư vấn xây dựng XRF-Việt Nam
Địa chỉ: Tầng 10, tòa nhà RCC 33 Láng Hạ, Ba Đình, Hà Nội
Xưởng: 76/12 Vĩnh Phú 38, phường Bình Hòa, TP. Hồ Chí Minh
Hotline: 0988 431 399
Email: info.xrf@gmail.com
Fanpage: XRF - Việt Nam








Xem thêm